31 Brown Hill RoadBow, NH 03304




Mortgage Calculator
Monthly Payment (Est.)
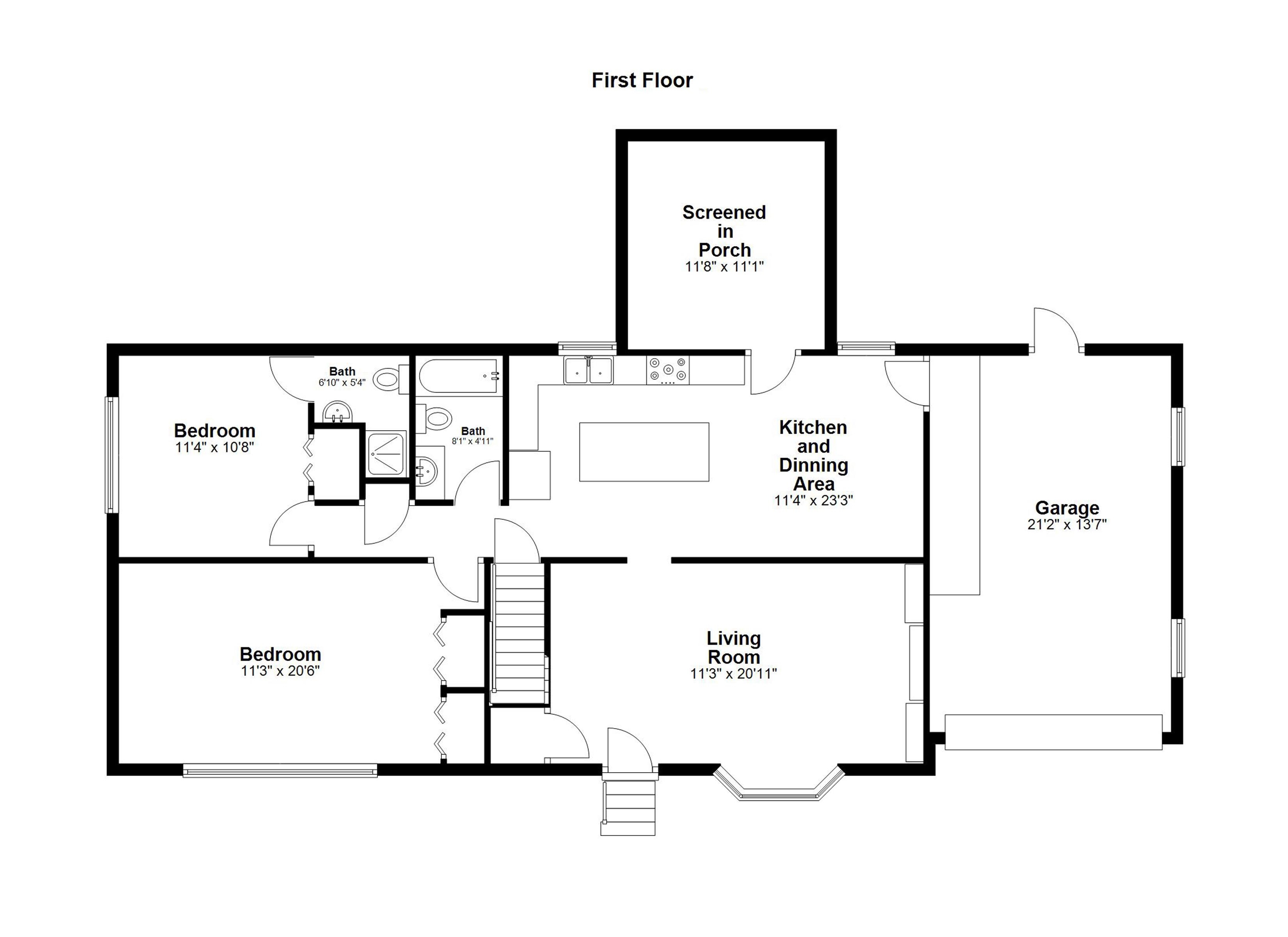
$1,688Offer Deadline 10/7 at 12:00 pm Welcome to 31 Brown Hill Road. This charming Ranch offers 2 Bedrooms, 2 Bathrooms and 1 car attached garage w/ carport. Step into the light and bright Living Room with hardwood floors, wood burning fireplace and built-in book cases. The Living Room opens to the spacious Kitchen with granite counters and Island , built-in cabinetry and large dining area with beautiful wide pine floors. Enjoy your morning coffee on the 3 season porch just off the Kitchen. There are 2 generous Bedrooms , one with an attached 3/4 Bath. The main full Bathroom completes the first floor. In the lower level you will find the cozy Family Room , Laundry and plenty storage space or room for further expansion ( 3 Bedroom septic design ) . Nicely situated on .90 acres with a large shed & abuts the Birchwood Heights neighborhood. Excellent central Bow location, close to the highly ranked schools and 89/93 for easy commuting. Come take a look!
| 4 weeks ago | Listing updated with changes from the MLS® | |
| 4 weeks ago | Status changed to Active Under Contract | |
| a month ago | Listing first seen on site |
Copyright 2025, PrimeMLS, Inc. All rights reserved. This information is deemed reliable, but not guaranteed. The data relating to real estate displayed on this display comes in part from the IDX Program of PrimeMLS. The information being provided is for consumers’ personal, noncommercial use and may not be used for any purpose other than to identify prospective properties consumers may be interested in purchasing.
Last checked: 2025-11-05 05:51 AM UTC
Did you know? You can invite friends and family to your search. They can join your search, rate and discuss listings with you.