32 EAST SIDE DriveConcord, NH 03301




Mortgage Calculator
Monthly Payment (Est.)
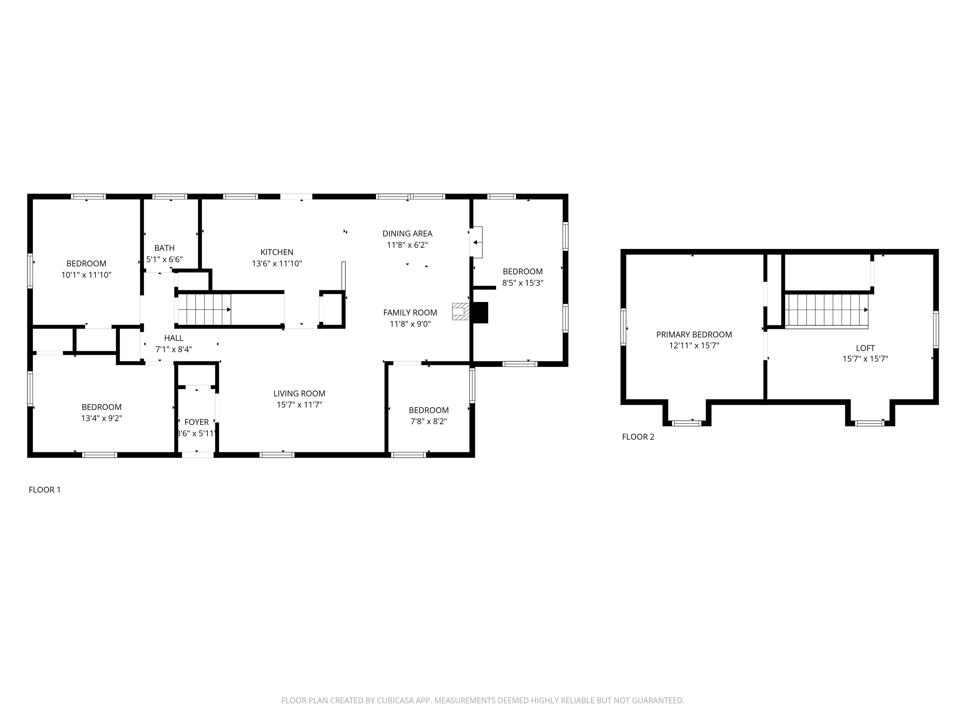
$1,870Charming and well-maintained 4-bedroom, 2-bath Cape situated on a double lot totaling 0.61 acres in a convenient Concord Heights location near I-93, I-393, and Loudon Road. The home offers natural gas for hot water, oil heat, and an updated electrical system. Recently painted throughout with updated windows, plumbing, and electrical. A natural gas fireplace hookup is available in the living room. Additional features include public water and sewer, a new roof installed in 2024, hot water heater replaced in 2019, and a new refrigerator in 2024. The main level includes three bedrooms and one full bathroom. The basement features a second full bathroom for added convenience. The second floor includes an additional bedroom plus a bonus or flex space. Outdoor highlights include a 20' x 12' gazebo on the back deck, extensive landscaping with tree removal, soil leveling, and a vegetable garden area. The property also includes a one-stall garage, deeded driveway, and a fully fenced private backyard. Conveniently located near shopping, restaurants, and public transportation. Move-in ready condition. Delay Showing starts on OPEN HOUSE 10/12/2025 from 11 am to 1 pm. Offer Deadline 10/15/2025 at 4 pm.
| 2 weeks ago | Listing updated with changes from the MLS® | |
| 2 weeks ago | Price changed to $409,900 | |
| 4 weeks ago | Listing first seen on site |
Copyright 2025, PrimeMLS, Inc. All rights reserved. This information is deemed reliable, but not guaranteed. The data relating to real estate displayed on this display comes in part from the IDX Program of PrimeMLS. The information being provided is for consumers’ personal, noncommercial use and may not be used for any purpose other than to identify prospective properties consumers may be interested in purchasing.
Last checked: 2025-11-05 11:14 PM UTC
Did you know? You can invite friends and family to your search. They can join your search, rate and discuss listings with you.