100 Brooklyn StreetMorristown, VT 05661




Mortgage Calculator
Monthly Payment (Est.)
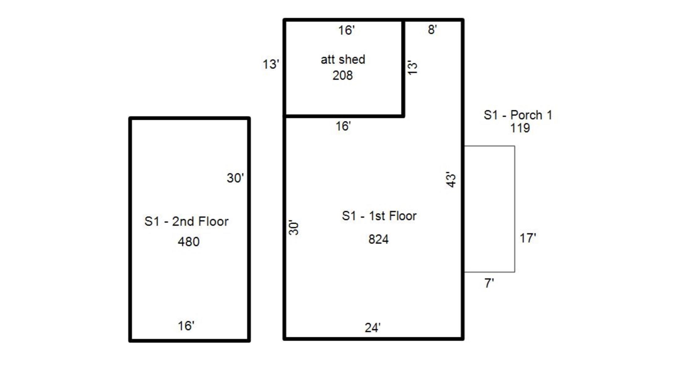
$502Village home and detached garage on a 1/2 acre gently sloping lot with direct waterfront access on the Lamoille River. The house was damaged by fire in May of 2023, so interior and exterior rehab and upgrades are needed. The house fire originated at the kitchen wood stove and most damage is in that area. The larger structure otherwise appears to be intact, but further investigation by a qualified professional is needed. In addition to the rehab of the house, the 1/2 acre lot on Route 100 / Brooklyn Street has great development potential. It can be subdivided with 4 housing units on each lot. Please note that the house, garage, and property is being sold "as-is where-is." Please note that all refuse on the floors inside the house, inside the garage, and on the lawn (including the 2 cars) will convey with the property. You must first schedule a formal showing through buyers agent or agency. Entering the property without permission is considered trespassing, and can result in fines, legal consequences.
| 2 hours ago | Listing updated with changes from the MLS® | |
| 3 days ago | Status changed to Active | |
| 3 days ago | Price changed to $110,000 | |
| 4 days ago | Listing first seen on site |
Copyright 2025, PrimeMLS, Inc. All rights reserved. This information is deemed reliable, but not guaranteed. The data relating to real estate displayed on this display comes in part from the IDX Program of PrimeMLS. The information being provided is for consumers’ personal, noncommercial use and may not be used for any purpose other than to identify prospective properties consumers may be interested in purchasing.
Last checked: 2025-12-22 06:53 PM UTC
Did you know? You can invite friends and family to your search. They can join your search, rate and discuss listings with you.