Bayside Road 2DGreenland, NH 03840




Mortgage Calculator
Monthly Payment (Est.)
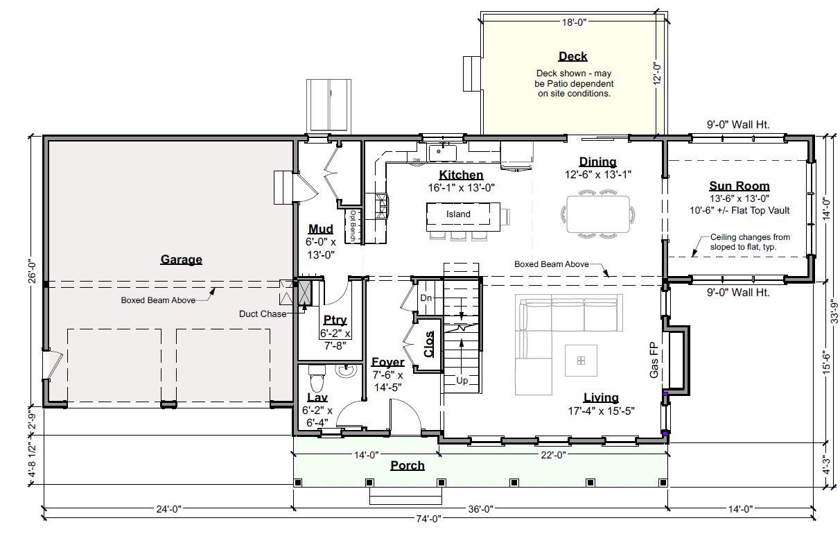
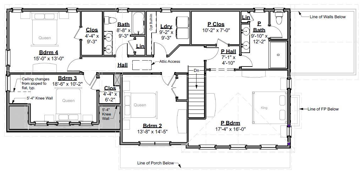
$6,387NEW CONSTRUCTION is just beginning to build this "Country Farmhouse" on a beautiful spacious lot in centrally located Greenland, NH. This floor plan has a lovely front farmers porch entry. The living layout is open flow with a sunny four season room. The owner's entry off the two-car garage has a spacious mud area and walk-in pantry. Upstairs are four generously sized bedrooms, with plenty of closet space, and a conveniently located laundry room with space for cabinetry/folding area. Full basement offers endless expansion potential or great storage space. Primary bath tile shower, hand finished hardwood flooring, custom kitchen with island, sparkling countertops, cozy gas fireplace, high ceilings, beautiful trim work and much more! There's still time to customize and choose your selections! This home is convenient to schools, shopping, downtown Portsmouth , local beaches and major highways. Time to make this dream home yours!
| 3 hours ago | Listing updated with changes from the MLS® | |
| 7 hours ago | Listing first seen on site |
Copyright 2026, PrimeMLS, Inc. All rights reserved. This information is deemed reliable, but not guaranteed. The data relating to real estate displayed on this display comes in part from the IDX Program of PrimeMLS. The information being provided is for consumers’ personal, noncommercial use and may not be used for any purpose other than to identify prospective properties consumers may be interested in purchasing.
Last checked: 2026-01-29 12:15 AM UTC
Did you know? You can invite friends and family to your search. They can join your search, rate and discuss listings with you.