Bayside Road 2EGreenland, NH 03840




Mortgage Calculator
Monthly Payment (Est.)
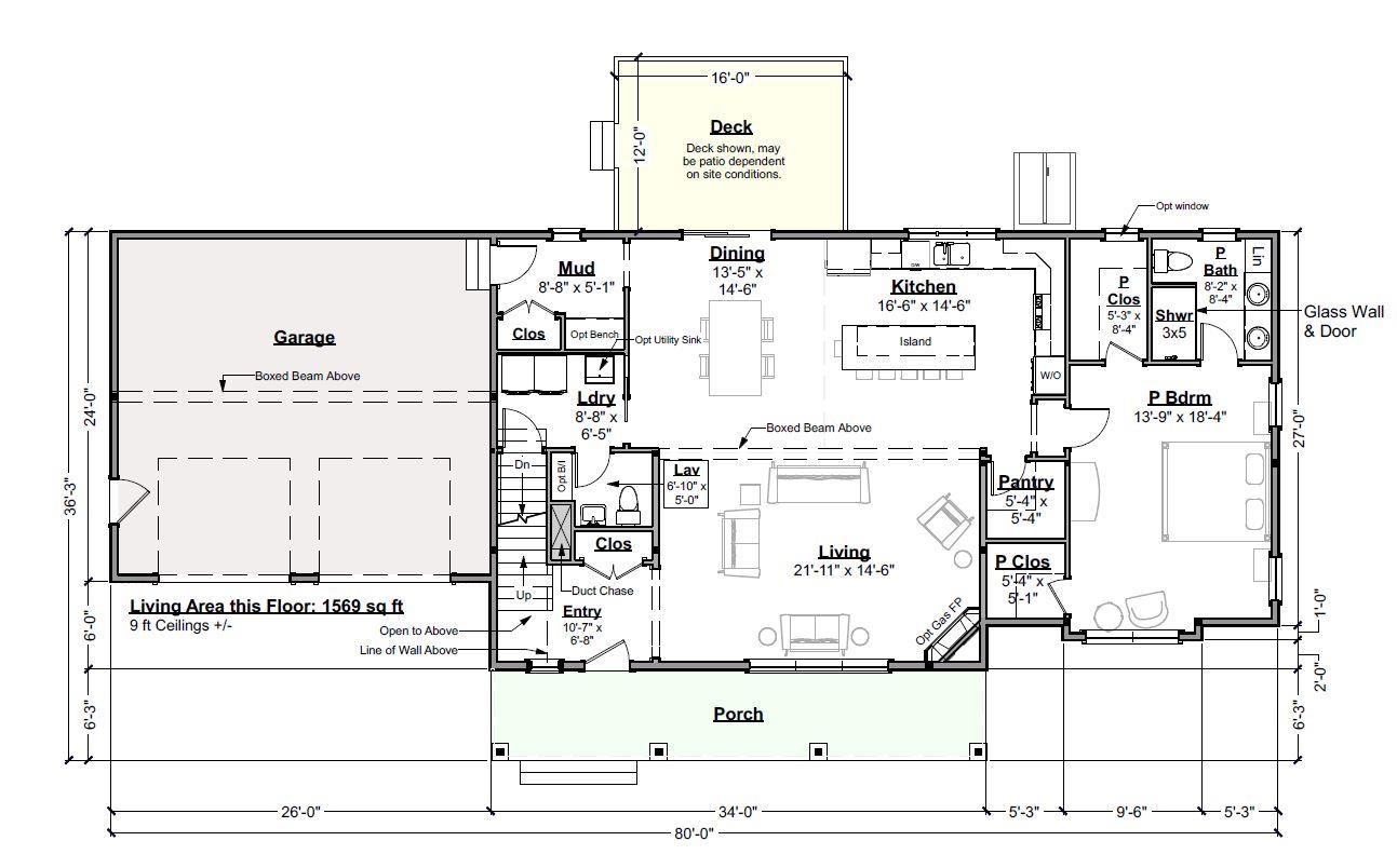
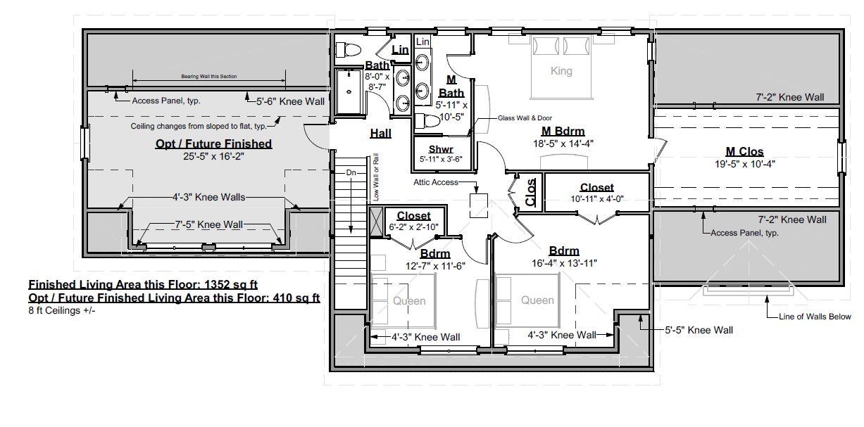
$6,570NEW CONSTRUCTION is just beginning on this stunning Robin Classic home offering both first and second floor primary suites and perfectly situated on a beautiful, spacious lot in centrally located Greenland, NH. The thoughtfully designed floor plan features a charming front farmer’s porch—an ideal spot to enjoy your morning coffee. Inside, the open-concept layout offers effortless flow, complete with hand finished hardwood flooring, high ceilings, and gas fireplace. Custom kitchen with stone countertops, spacious island, and walk-in pantry offers great storage. An owner’s entry from the two-car garage leads to a convenient mud area. The first floor primary offers a private bath with tile shower, and walk-in closet. First floor laundry. Up the hardwoods stairs are three more bedrooms, including a second primary suite with expansive walk-in closet, bath with tile shower. Optional bonus room on this floor for future expansion. The full basement provides endless possibilities. High end features include tile showers, hand finished hardwood flooring, generous finish allowances, beautiful trim work – and more! Lot will be professionally landscaped. Still time to customize your finishes! Conveniently located near schools, shopping, downtown Portsmouth, local beaches, and major highways, this is an exceptional opportunity to make your dream home a reality.
| 3 hours ago | Listing updated with changes from the MLS® | |
| 7 hours ago | Listing first seen on site |
Copyright 2026, PrimeMLS, Inc. All rights reserved. This information is deemed reliable, but not guaranteed. The data relating to real estate displayed on this display comes in part from the IDX Program of PrimeMLS. The information being provided is for consumers’ personal, noncommercial use and may not be used for any purpose other than to identify prospective properties consumers may be interested in purchasing.
Last checked: 2026-01-29 12:15 AM UTC
Did you know? You can invite friends and family to your search. They can join your search, rate and discuss listings with you.