84, 86, 88 Ryan Farm Road 1, 2, 3Windham, NH 03087




Mortgage Calculator
Monthly Payment (Est.)
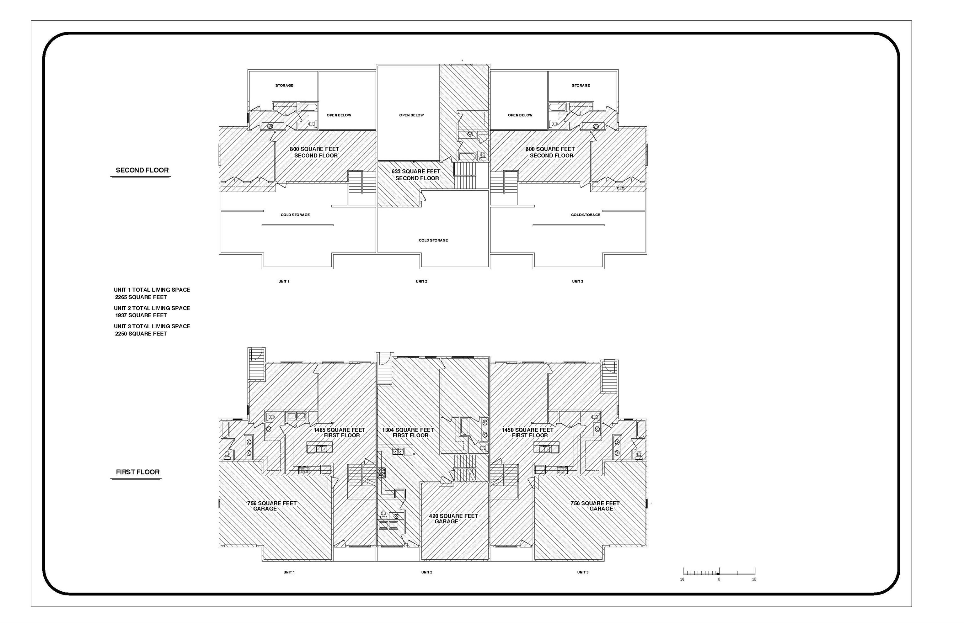
$10,037Exceptional opportunity to own a newly constructed triplex in desirable Windham. Located within a 55+ development with an 80/20 occupancy rule in place, this property is being sold as one complete package and will be delivered as three fully finished, rent ready units. Each thoughtfully designed unit offers approximately 1,900 to 2,265 square feet of living space, featuring open concept main living areas, spacious kitchens with center island seating, primary suites with private baths and walk in closets, additional bedrooms, dedicated laundry, attached garages, and private patios. The layouts provide comfortable, low maintenance living designed to appeal to today’s active adult renter. With over 6,400 square feet of total living area across all three units, this property presents strong income producing potential in a high demand rental market. As new construction, investors benefit from energy efficient systems, updated finishes, and minimal near term maintenance concerns. Approved by the Town of Windham for rental use only, the units must remain rentals, making this an ideal turnkey addition to an investment portfolio in one of Southern New Hampshire’s most sought after communities.
| 2 days ago | Listing updated with changes from the MLS® | |
| 2 days ago | Listing first seen on site |
Copyright 2026, PrimeMLS, Inc. All rights reserved. This information is deemed reliable, but not guaranteed. The data relating to real estate displayed on this display comes in part from the IDX Program of PrimeMLS. The information being provided is for consumers’ personal, noncommercial use and may not be used for any purpose other than to identify prospective properties consumers may be interested in purchasing.
Last checked: 2026-03-01 08:40 PM UTC
Did you know? You can invite friends and family to your search. They can join your search, rate and discuss listings with you.