Map 23 Lot 11-25 Frederick LaneNottingham, NH 03290




Mortgage Calculator
Monthly Payment (Est.)
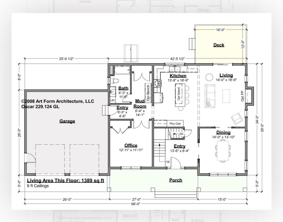
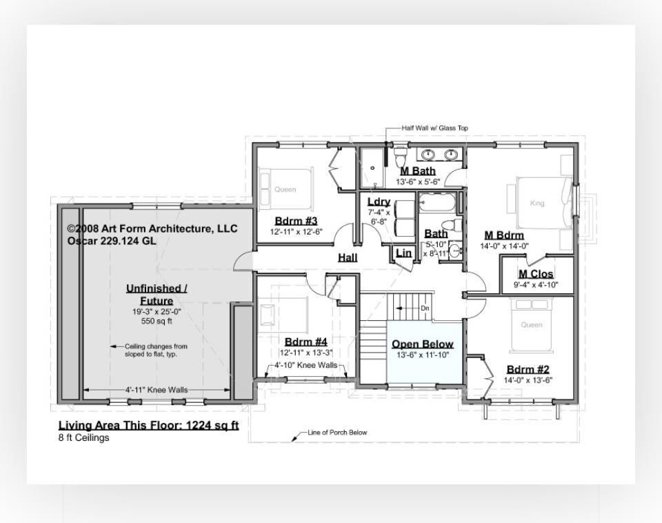
$5,589Welcome to Peekaboo Estates, Nottingham’s newest luxury subdivision, where homes are thoughtfully placed to maximize privacy and preserve the natural landscape. Mature, indigenous trees and intentional lot layouts create a setting that feels tucked away and peaceful, yet still close to everything you need. Here, you have the flexibility to bring your own plans or build from a selection of architecturally designed homes. Featured is the “Oscar” plan, a spacious and highly adaptable design offering approximately 3,100+ sq ft of living space, with 4 bedrooms and 3 baths, plus options for additional finished space to suit your needs. Designed with modern living in mind, this home offers an expansive, open layout where the kitchen, dining, and living areas come together effortlessly. Large, well-proportioned rooms and flexible spaces make it easy to accommodate everything from entertaining to working from home or hosting extended family. Quality is at the forefront, with high-end finishes, energy-efficient systems, and craftsmanship you can feel. Buyers will appreciate the ability to customize selections and create a home that is truly their own. Peekaboo Estates offers a rare blend of new construction and natural beauty set in desirable Nottingham with convenient access to Route 4, the Seacoast, and surrounding towns. A unique opportunity to build a home that fits your lifestyle in a setting that feels like a retreat.
| 16 hours ago | Listing updated with changes from the MLS® | |
| yesterday | Listing first seen on site |
Copyright 2026, PrimeMLS, Inc. All rights reserved. This information is deemed reliable, but not guaranteed. The data relating to real estate displayed on this display comes in part from the IDX Program of PrimeMLS. The information being provided is for consumers’ personal, noncommercial use and may not be used for any purpose other than to identify prospective properties consumers may be interested in purchasing.
Last checked: 2026-03-25 05:38 PM UTC
Did you know? You can invite friends and family to your search. They can join your search, rate and discuss listings with you.